


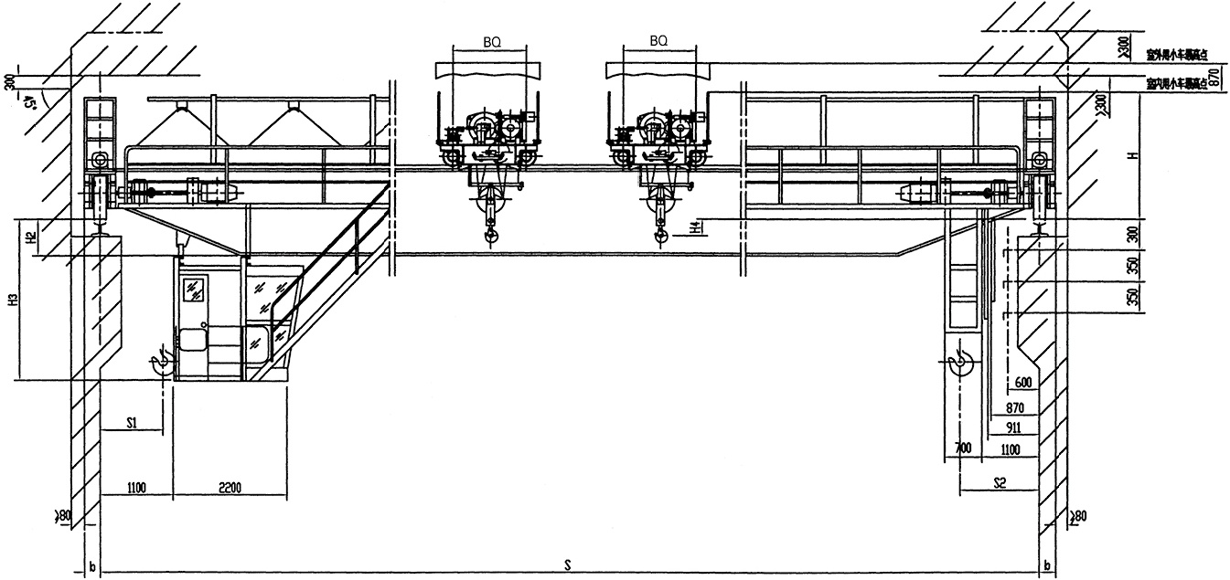
本起重机有两台小车,两小车可以同时使用,也可以单独使用,适用于厂矿企业的车间或露天仓库吊运长件材料(木材,纸筒,管封,棒材)。
Double—trolleyBridgeCrane
Withtwotrolleysthatworkssimultaneouslyorseparately,thiscraneissuitabletoliftlongmaterials(wood,papertube,pipeandbar)inworkshopsoroutdoorstoresinfactoriesandmines.
注:1.大车导电有角钢和安全滑触线两种形式,供选择。
2.操纵形式有室操(分开式和闭式),地操和遥控三种,供选择。
Notes:
1.Powersupplyforthemainvehiclecanbeeitherthroughanglesteelorsafetyslidewire.
2.Operationcanbedoneinthecabin(open-typeandclosed-type),onthegroundorthroughremotecontrol.





企业传真:0373-8612888
企业邮箱:hzqzj@163.com
地址:河南省长垣县位庄工业区
400-0373-400
扫一扫 关注我们