


A型5~160吨双梁吊钩门式起重机
AType5~160tDoubleBeamHookGantryCrane
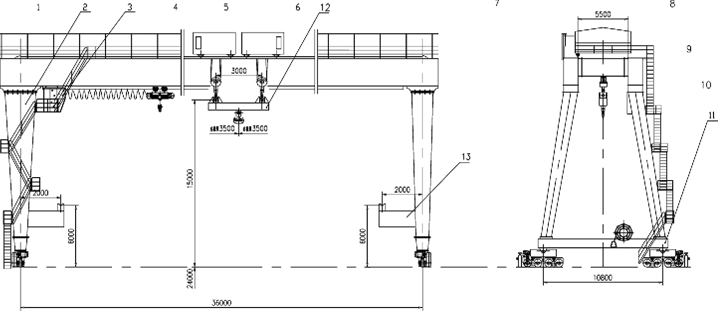
A型双主梁吊钩门式起重机适用于露天货场、铁路沿线作业进行一般的装卸及起重搬运工作。A型门架结构,上面带有马鞍结构,受力合理,为国内使用广泛的双主梁门式起重机。根据其结构形式,可分为包厢式MG,额定起重量5~320t;以及减少风阻而设计的桁架式MGH结构,额定起重量为5~160t。





企业传真:0373-8612888
企业邮箱:hzqzj@163.com
地址:河南省长垣县位庄工业区
400-0373-400
扫一扫 关注我们